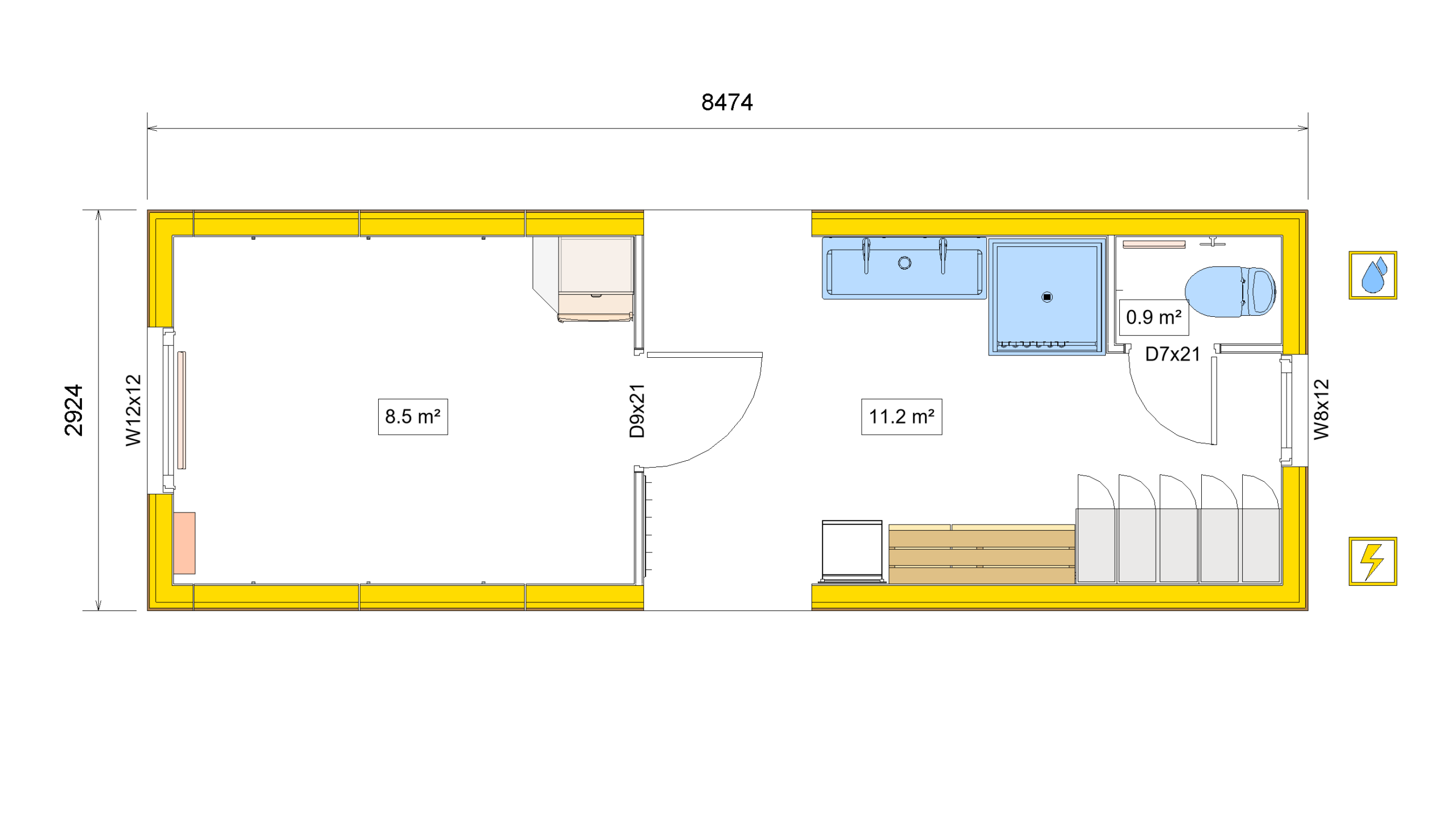
Key Features:
- Multifunctionality: toilet, wardrobe, shower, meeting room, dining room
- Toilet
- Metal shower cabin
- Stainless steel double-sink
- Cleaning supplies
- Wardrobe (5 persons)
- Bench & coat racks
- Refrigerator
Specifications:
| Function Category | Dining, Manpower, Office, Sanitary |
|---|---|
| External Dimensions (L x W x H) | 8474 x 2924 x 3000 |
| Internal Dimensions (L x W x H) | 8084 x 2534 x 2400 |
| Fire Rating | REI30 |
| Weight | 5.2 T |
| Lifting | Crane, Forklift |
| U-value, Floor, W/m²K | 0.18 W/m²K |
| U-value, Roof, W/m²K | 0.18 W/m²K |
| U-value, External wall, W/m²K | 0.22 W/m²K |
| U-value, Window, W/m²K | 1.0 W/m²K |
| Electrical Connection | 32A, 230V, 32A, 400V |
| Water & Sewage Connection | Water pipe Ø26,9 mm, Sewage pipe Ø110 mm |
| Water Heater | 100L |
| Lighting | LED lighting controlled via motion sensors |
| Heating | Electric Heaters, 100 W/m² |
| Ventilation | Mechanical extraction, Recuperative ventilation |
| Scheduled Energy Saving | Optional |
| Air Cooling | Optional |
| 3D | https://my.matterport.com/show/?m=2sX86wAvKda |



