Model:

Key Features:
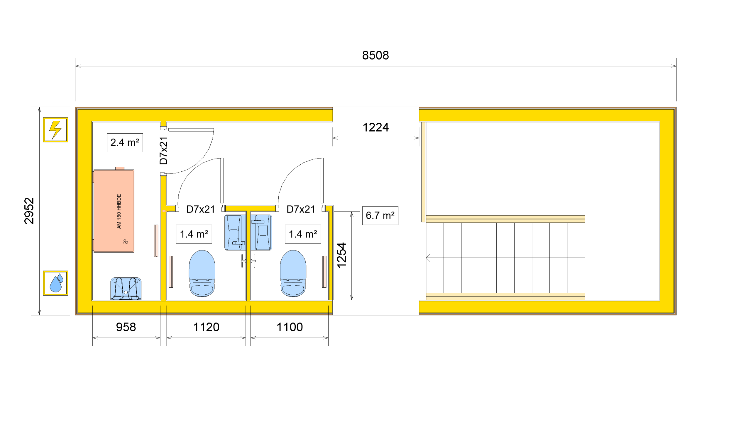
- Second storey staircase module to be paired with 031 or 031S
- Wooden staircase with PVC covered risers
- Staircase fixed to floor with hinges, enabling adjusting the position for transportation and usage
- Toilet (2 pcs)
- Janitor’s sink
Specifications:
| Function Category | Sanitary, Staircase |
|---|---|
| External Dimensions (L x W x H) | 8508 x 2952 x 3316 |
| Internal Dimensions (L x W x H) | 8080 x 2524 x 2700 |
| Fire Rating | REI30 |
| Weight | 5.4 T |
| Lifting | Crane |
| U-value, Floor, W/m²K | 0.18 W/m²K |
| U-value, Roof, W/m²K | 0.18 W/m²K |
| U-value, External wall, W/m²K | 0.22 W/m²K |
| Electrical Connection | 32A, 230V, 32A, 400V |
| Water & Sewage Connection | Water pipe Ø26,9 mm, Sewage pipe Ø110 mm |
| Water Heater | 5L |
| Lighting | LED lighting controlled via motion sensors |
| Heating | Electric Heaters, 100 W/m² |
| Ventilation | Recuperative ventilation |
| Scheduled Energy Saving | Yes |
| Air Cooling | Optional |
| Steel Base Frame | No |


